Orientační nabídka


Menu

Sociální sítě


Vyhledávání


Cesta: Titulní stránka > Město Kopřivnice > Často hledáte > Bydlení a nemovitosti > Prodeje a pronájmy

 

Objekt bez č. p. v sadu E. Beneše

 

 
 
wc





































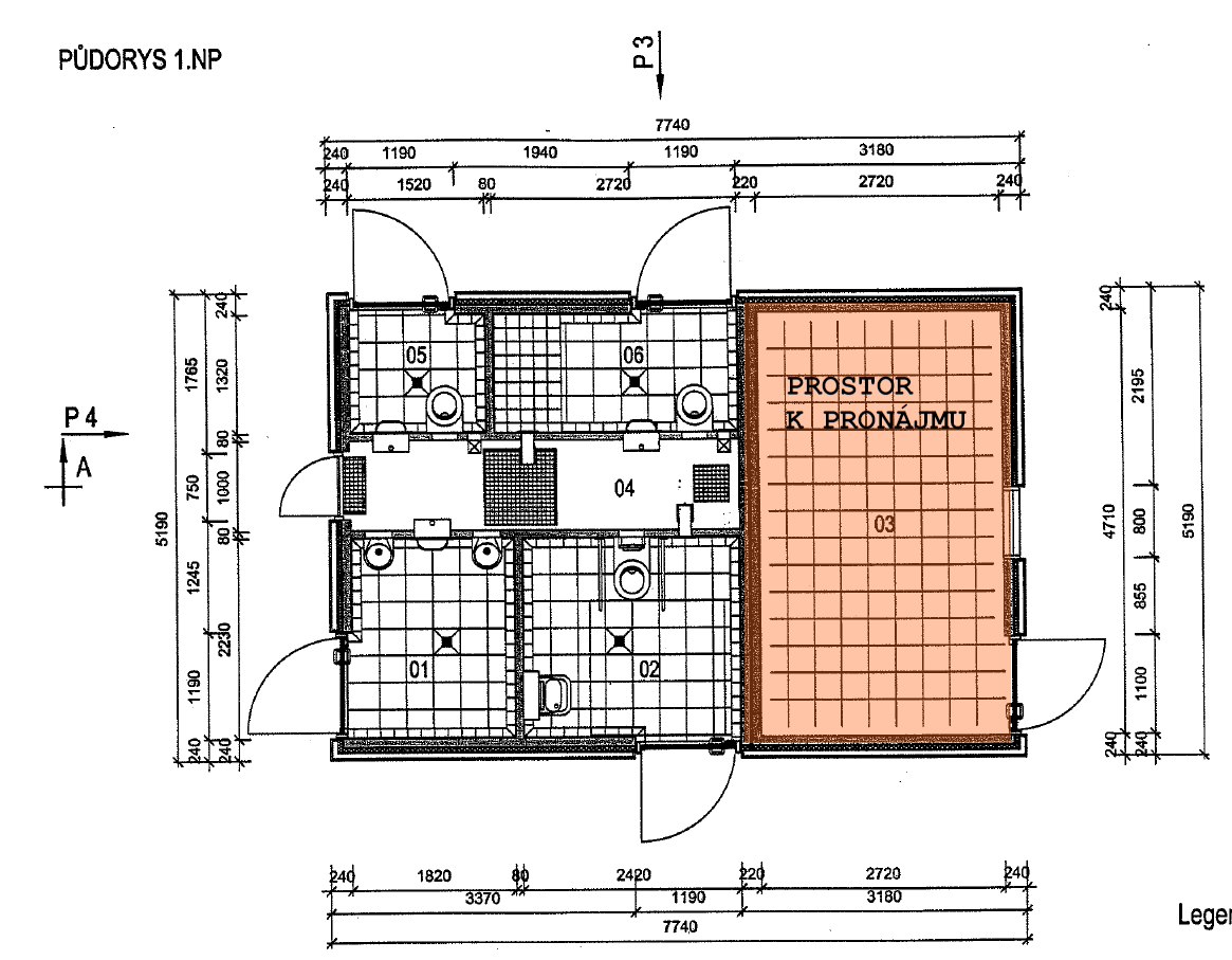
Nebytový prostor – místnost č. 03 o výměře 12,8 m2 se nachází v 1. NP objektu na ulici Štefánikova (budova veřejných toalet) v sadu E. Beneše.

půdorys WC












Prohlídka nebytových prostor je možná po dohodě s pracovníky Odboru majetku města Štefánikova 1163, 8. poschodí, dveře č. 883, tel. 556 879 651
 
Zodpovídá: Správce Stránek
Vytvořeno / změněno: 11.3.2026 / 11.3.2026
 

 

Kontakt

Město Kopřivnice
Štefánikova 1163/12
742 21 Kopřivnice

Tel.: +420 556 879 411
E-mail: posta@koprivnice.cz

Podrobný kontakt


Úřední hodiny

  • Po: 8:00 - 11:30, 12:30 - 17:00
  • Út: 8:00 - 11:30, 12:30 - 14:00
  • St: 8:00 - 11:30, 12:30 - 17:00
  • Čt: 8:00 - 11:30, 12:30 - 14:00
  • Pá: 8:00 - 10:00 (pokladna), 8:00 - 11:30 (pouze informace, podatelna a Czech POINT)

Navštivte také

    Zpracováno v rámci dotačního projektu: "Kvalitní úřad Kopřivnice",
    reg. č. CZ.03.4.74/0.0/0.0/19_109/0016783
    logo EU 
    Lašská brána Beskyd

Nyní jste v módu "Bez grafiky". Přepnutím do grafického módu zobrazíte standardní verzi webu.

Informace v patě

  • Aktualizace obsahu: 17.4.2026
  • Počet přístupů: 5632101 (od 18.10.2022)

web & design WEBHOUSE®, redakční systém vismo®

Tento web pro svoji správnou funkci využívá soubory cookies.

O cookies

Nastavení cookies

Tento web pro svoji správnou funkci využívá soubory cookies.

Více o cookies

Tyto soubory nám umožňují poskytnout návštěvníkům kvalitnější služby, protože nám například umožní získat anonymizované analytické údaje o používání tohoto webu.

Kompletní přehled cookies, které tento web využívá naleznete zde.

Skupiny cookies